 鲜花( 4)  鸡蛋( 0)
|
地址:11615 111 AV NW
6 }# }+ j! x# r! [
: J. _$ o& l0 U( B5 r4 u! h; P售价:$395,0007 ~$ @2 ^( x: I) w/ M$ a
$ b ?' o2 _2 N0 C联系方式:老杨团队% r7 j3 r/ h! M) g' X( g D
1 _/ Z: n# x- V$ T6 i9 `& c1 O1 v(http://www.fanyangteam.com)4 m2 b0 K/ L; t: y" i6 T% ?0 Q
( {( H, w6 ~( d! o) s
1 q, i# ^4 f( x, v/ ^ c( X
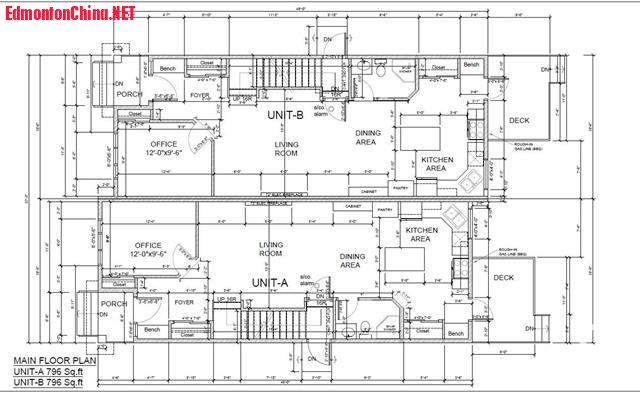
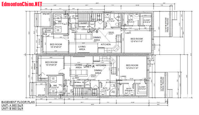
5 c) Y- `/ N" j# s8 f1 u9 C0 u建商、投资者注意!超值旺地出售!
1 W% k( o# a7 k- a( m! l
/ v) V6 @ p' q6 \' q; t y47'X155' 双拼地块坐落在优质名区 Queen Mary Park! 土地已经测量分好,可建造带合法地下室套房和独立双车库的双拼,设计和建造许可证都已包含在售价中,后无无忧!8 \0 y: r% [0 M. t% e4 W. [
# b, s6 r7 w2 i) r" j6 C
位置超优越!步行Royal Alexandra医院、Kingsway Mall、LRT车站!驱车轻抵NAIT、MacEwan大学、冰区!便利直达市中心,周边商超齐全,畅享优越便利生活!& z8 ?0 `# \1 Z. {9 R
0 D$ n8 t/ r9 f2 j" v8 oVACANT LOT for sale. No demolition is needed and READY to build! Attention builders/developers/investors - 47'X155' HALF DUPLEX lot for sale in the desirable community of Queen Mary Park! Lot has been subdivided. Design & building permit for a side by side half duplex with legal basement suites & double detached garages is available & included in the price. Great location within walking distance to Royal Alexandra Hospital, Kingsway Mall, LRT & easy access to NAIT, MacEwan University & Ice District.quick access to downtown/Ice district, NAIT, Macewan University, Kingsway Mall, Shopping, and Amenities.
- f$ v# f/ b: z( I5 i9 `/ |/ F* ~3 Q6 }0 ?( L
# k B) N! Z- ] D f
$ U4 t- E% j/ W u% {
' T& H5 e4 g& v- ^9 m
; h! Z4 C# _" p/ s& W6 l5 t: T$ v7 f
' f* h' I( c7 H" {% L' m# J1 H" J
6 R7 n' T/ q l/ h! S( N: V
! S" k2 W W: z/ [4 }$ R
8 V6 S- B) W0 p& n1 W) B9 G9 q
& ?2 Q" B @2 {8 d4 ]
9 c: m# N* q1 P! W |
|