 鲜花( 4)  鸡蛋( 0)
|
地址:2831 191 ST NW
! L: N, Q+ t8 ]% a( k" L3 _$ H% v% k& K/ X% k
售价:$599,900; F- Q& A9 m( s7 N# `
8 Q& g& y9 Q7 I8 j; E( z/ c2 V联系方式:老杨团队3 U' C o. O' Z" I. X9 j1 a
* L: V: n1 c8 X4 f' s(http://www.fanyangteam.com); m7 \% u. B' m+ C% P
6 t% `, A' I. ~* M. Y h) o- V
# P- o+ b* R! P" {" j4 d& T4 o6 G
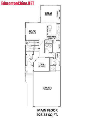
+ x( p/ I" j8 D$ v8 T爱城名区The Uplands优质美宅!3卧2.5卫浴转角旺地+直达加长双车库,机不可失!# Q; g8 y& X$ g8 g! [# z- y
+ ^2 d1 e! X" j ~/ h0 M2 l步入室内,9尺挑高开放式门厅。现代化的厨房配备了石英石台面、整体等高防溅墙和软关橱柜,寸寸精致!- s7 |& @- z3 }" i! G
2 F- S% E5 K0 A9 r: M( A
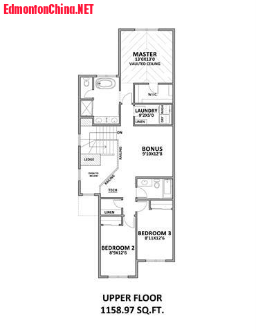
明亮的客厅里设有时尚电壁炉。拾级而上,二楼艺术天花板的主卧套房配备了双洗手池、瓷砖淋浴间和独立大浴缸。第二和第三间卧室也进行了扩建,增加了更多空间。
' @6 m4 I9 a- c0 M& r7 L; f7 a8 ~' m( V" E! M* c
地下室坐拥9尺挑高天花板,开阔舒适!设有两扇大窗,采光充沛。侧门可独立出入!并预留了洗衣房、吧台、浴室、第二套锅炉、厨房和烘干机排气管道的管道——未来可改建成独立套房、潜力巨大!
7 ?7 P2 t; `8 w+ q. j3 Y* ?* Z5 _: O' {& b) i1 L
全屋海量升级!配备了组合式百叶窗,并提供5000加元的家电补贴、白杨木栏杆和节能的三层玻璃窗。
- ~9 I. L, y# I& }1 [9 u7 e* r- B8 ^1 t3 x' N% \
万事俱备、诚邀品鉴!. q" h/ U( `8 `% l* A9 u0 E
- s" M) g6 ~/ U/ `8 b- }) @4 PBeautiful 3-bedroom, 2.5-bath home on a corner lot! Features a double attached garage with added length and an open-to-above foyer with 9’ ceilings. The modern kitchen offers quartz counters, full-height backsplash, and soft-close cabinets. Enjoy the cozy electric fireplace in the bright living area. Upstairs, the vaulted-ceiling primary suite includes double sinks, tiled shower, and freestanding soaker tub. Bedrooms 2 and 3 are extended for extra space. Basement with 9’ walls, 2 windows, and side entrance with rough-ins for laundry, wet bar, bath, 2nd furnace, kitchen & dryer vent—ready for future suite! Enjoy combi BLINDS throughout, a $5,000 appliance credit, poplar railings, and energy-efficient triple-pane windows. Quick possession available!
: B* e+ I8 A0 _1 e% F
' @: Q4 J3 q' S) ]
/ H4 j+ i5 @( g" o Q0 p
. Y: f" S8 u$ y7 s1 f
! Q& Z% E9 Y8 q
. c7 u1 i+ \3 Q2 O
5 t+ T: f" v: z* |5 S
$ u" ]; Z* ?* j3 @4 M( p7 V
) C6 ]: @' r5 t2 C9 F
7 ?/ _# X2 \7 Y7 B% ~8 z8 C+ x
) H. q; w9 E& v( n& q) [4 q
* c, `* A* n6 L; n6 N0 M
! S- R( B% P6 U3 @0 p0 j0 ^2 D
( Z9 B& R: r8 J( K$ p, Z0 a
) d* [: I7 S2 u# g. \+ |& X; v% W7 X
1 h% e, I: Q' \2 Z/ f2 z1 x
9 R( \2 t5 _$ ]. Z9 M+ R
0 _, p6 M6 u% r
. Z# {/ B. s# z
( F+ I! N4 ]& Y) ~% K( D$ v, V+ g
" Z0 u! q+ \ F8 {
# A, c# A2 A! [. O0 k/ G- }
- {: s0 o0 h8 H9 C7 u( o% ^* C S
' u" X v9 C/ V) K' n+ H# L, E
' T5 U3 f+ p/ U2 ?
: _& m# n' ^$ l: B1 L o5 S* j& S
7 {6 P+ @6 I/ {, h
, _2 C6 N- }5 n8 K+ q; L8 y
5 E0 Q( P8 @3 {" W Y/ v
+ Q: J+ b# e; F$ t% r. P0 I
0 f" n: I h5 W7 l
3 x& p' @! o" e
* j- R3 J8 [) {$ E+ G7 W K
! }5 I ?9 [# @8 P% Y
$ d9 h, {3 e) u8 [) g6 P1 A
* J8 S( }* A# h! L3 I9 e
! {* `. ?2 Q* `0 @* h% ^( @8 O$ }
( W) ?9 j3 d9 W! \. N' {
8 J! {* G$ ]# L4 l0 s, |+ M
) v, r/ A3 `( _' V
$ G4 i0 k# S- n' o3 |& _
# ^% T8 R2 e+ Z8 k# s I; e$ e$ p) P
# c) S6 @$ T7 X+ {2 N) q" K |
|