 鲜花( 4)  鸡蛋( 0)
|
地址:19019 20 AV NW
, F# o1 E7 ?5 F& r/ I% O! F, ?6 O, s( y) D1 G! H1 ~, H
售价:$614,900
2 J0 F2 |! r: n% v: p- g3 c- x/ k1 {) Z8 y' F' d
联系方式:老杨团队6 E9 t0 h$ Z; u) a2 e9 A; i1 T1 c
0 n# {3 e8 p3 x0 g0 p& B$ R(http://www.fanyangteam.com)
5 x/ ~6 A# J+ Q! v, w5 [0 [- ~. M" q9 h7 e$ E% |
: B4 g+ W$ D! R4 |2 @3 q( T0 T! j3 P4 H6 U) V% f
欢迎来到由Look Master Builder精心打造的Paragon住宅!2025年全新落成,4卧3.5卫浴双层美墅,坐落在一处安静的钥匙圈!
- H% A: A: y% ?0 I. o E: ?, @! {- {8 \* S
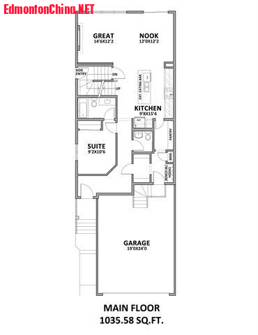
主层开放式布局,设有1间卧室,并配有独立卫浴;宽敞美食安装了饭岛、全高防溅挡板、温馨壁炉;带鞋凳和衣挂的步入式盥洗室,可直通食品储藏室。- O$ y, R; K. C) a: p" a$ \
+ E1 d9 T2 H: Q- f1 P% V) V& _1 p
二楼设有明亮的居家客厅、便利洗衣房、两间宜居卧室!令人惊艳的主卧套房,仰头可见艺术天花板,豪华的五5pc卫浴间设有双洗手池和独立浴缸。
9 V7 Y, [! e" L! ~2 f2 _8 j. k- l/ O6 B
地下室设有独立侧门入口、9尺高的地基墙、两扇明亮大窗采光充沛,并预留了浴室、吧台、洗衣房、第二台锅炉、抽油烟机和烘干机排气管道的管道接口……未来可落成一套独立套间!1 i$ X# f: f+ |5 D; G- T; Y5 w
# L( M# _8 h H4 K全屋配备了百叶窗,可享5000加元家电补贴,并配有白杨木栏杆和节能三层玻璃窗。超大车库,安心停放!& E) _2 A, W' O9 \+ k. R
5 U: _; c5 M' h. A2 J# _万事俱备,欢迎看房!- w; q; ]3 _) x, {
" b6 ?* u( @* BWelcome to the Paragon by Look Master Builder — a stylish 4-bed, 3.5-bath two-storey home on a quiet cul-de-sac with a MAIN FLOOR BEDROOM & ENSUITE. Main floor features include an oversized garage, open-concept layout, large kitchen island, full-height backsplash, cozy fireplace, and a walkthrough mudroom with bench and hooks leading to the pantry.
: N. C' b" _: G. U& i4 ?6 w' G
4 E0 V7 j; M' L; x# E h4 D/ ]Upstairs offers a bright bonus room, laundry, two additional bedrooms, and a stunning primary suite with vaulted ceilings and a luxurious 5-piece ensuite featuring dual sinks and a free-standing tub. The basement has a separate side entrance, 9’ foundation walls, two windows, and rough-ins for bath, wet bar, laundry, 2nd furnace, hood fan, and dryer vent. Enjoy combi BLINDS throughout, a $5,000 appliance credit, poplar railings, and energy-efficient triple-pane windows. Quick possession available!
" q) L# v, P% t6 @' y' ]
& _& C$ [0 A$ D( b' U
! [* F0 s( f2 D5 k3 M2 M$ O" v
* i( a$ z: @; k6 @- Q/ ]7 W# _
7 V h. O/ E9 S5 I4 ~ Q: u
# ]1 C( T [; j6 F7 I
) z0 i+ a0 z0 S7 e2 M
( `8 X( X+ O q) {7 Z. G
7 p6 W* J0 e) Y- {) _
; c$ x! V& y4 l# P" z$ @/ H7 P
4 V: Y- T7 S; o' b4 f z- A0 G
5 p* q, A" V, J) z
( r) ~5 t s1 D; b+ P ]
) ]$ o3 f, G2 g0 P/ L6 j) t' H$ a7 S v
6 c* H( @4 q( I9 Z% A
$ ]9 C, ^ t( Q/ Z9 r
! J- E$ Y" i, j5 h( t, A! v( s. w
: I3 i' r3 l3 q
8 X( J W! @' ?+ E" n
$ ]5 ^" o) n Y
; v' \" @8 ?3 c; z7 {2 M. ~
0 j: [2 g1 H ~9 N" e) c( a
- ]! q# w/ S( x" G& D1 Z/ X
+ E1 \2 X7 A( \: O& u9 W/ o- C
) `" E9 Q: ~2 p6 W5 X4 n, _
, M( |# e& W7 ^9 Q d8 ~
1 L# W% k% ?4 |' J
7 C, ~" Q/ ~. L+ h ?) _" Q
7 l6 G- s! Q" K; m( D2 x$ c' l8 G
5 F9 v2 b' S0 p. V$ \
' J+ a6 ]$ K: C4 m' k# O8 W# p5 e4 ^
8 ]4 k; G1 S- `8 O% x
. |9 P9 I& g" h4 D5 Q
, E, K j/ ?# s2 u" A7 N
- B' Y- v9 `5 Y$ H" j
( a4 h2 k5 J$ `/ ]" L5 q3 J
; f$ `5 t8 L C* s: L: r0 a
8 g& s+ C0 a% T0 p! j; k
" ^6 I; q" F/ r: d9 S
0 W2 {! l2 L# o6 u1 X2 W
5 j- p0 a* Y3 a. t: n* [) b
|
|